Nest House & Land in Mandurah

From $337800

  • 3
  • 2
  • 2
  • 144
  • 270

Lot 196 Quendamia Lane, Mandurah

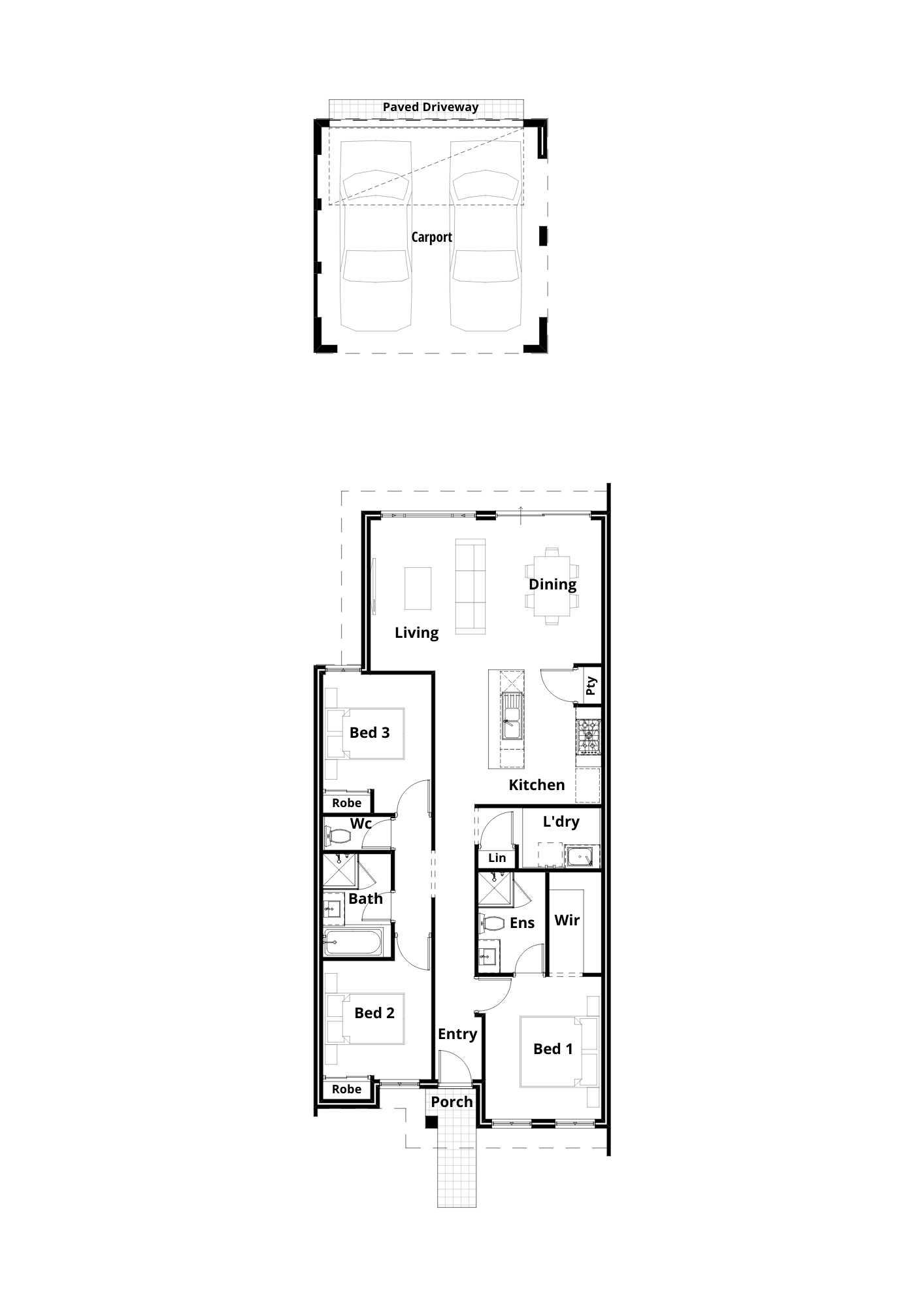
Nest is a serene 3 bedroom family home with 2 bathroom, a detached 2 garage. An open living space with kitchen and dining at the rear and a well appointed master bedroom situated at the front of the house.

Download Information

Enquire now about the Nest House & Land in Mandurah

Enquiry form

  • By submitting this form you consent to receive marketing communications from Better Way 2 Invest as per our Privacy Policy. Don't worry, we hate spam and will keep your address safe.

Highlights

  • 10 Month Build Program
  • 25 Years Structural Warrranty
  • Available Financing Options
  • Customizable Plans

Property Features

  • 3 Bedroom
  • 2 Garage Detached

Floor Plan

Christine Cappas
Christine Cappas
Mike is a truly genuine person who cares about his client. From the start he was very transparent and let me know how everything works, he is very knowledgeable and knows his stuff! I completely trust him in buying and buying my first home
Monserrat Reuter
Monserrat Reuter
I built my first home all on my own thanks to Sev and Marlise. I don’t even know where to start as words cannot describe how grateful I am that I found these two. To build my own home was only a dream that Sev and Marlise helped make into a reality. The unconditional support and dedication towards whatever I needed throughout the whole process made me feel so safe and looked after. Even though I built my dream home on my own it never felt that way, it didn’t matter the time or day, these guys went out and beyond for me with every detail and step of the process. They are people of their word that you can genuinely trust in this dog eat dog world. They are upfront and honest, it was never about the money but how you felt leaving their office. I had many friends and family tell me about the awful experiences they had building with other companies, so naturally I was a little frighten and on guard but Sev me Marlise squashed this with one meeting. But the biggest thing I can say about Sev and Marlise is that my experience was incredibly fulfilling and wholesome and I am so grateful for them and their expertise and professionalism. If I ever decide to build again I know exactly where to go! Thank you guys so much for all the love and support which has continued even after the build. Much love to you all!! 😊
Ashley De Faria
Ashley De Faria
Sev and Marlise were so incredible throughout our time with them. We’re so happy that we got to work along side an epic team. My partner and I had a vision, Sec and Marlise happily put up with our pickiness and changes (including after hour messaging), and did everything they could do bring that to life. They are so warm and welcoming too making this whole crazy big process more enjoyable. I couldn’t recommend these two enough!
Raphaela & Amelia Jay
Raphaela & Amelia Jay
Mike was wonderful from the beginning and still helpful. We were about to give up Building but Mike assured us that he will definitely make it happen. Thank you Mike
Errin Patsy
Errin Patsy
Contacted Mike by chance for a new build and was met with honest and factual help. Excellent follow up and support, Mike is reliable and will go out of his way to get the best deal.
Rhys Crawford
Rhys Crawford
Mike has been helpful and reliable in getting my first home build started and well on its way to a timely completion. I recommend his services to anybody looking to build a new home!
Natasha Hanisch
Natasha Hanisch
When searching for a home loan you need to be able to rely on someone you can trust to be able to present you with all the options available and give you the right information to make the right decisions. Mike King from Better Way 2 Build is able to do all of this and so much more, with his extensive experience and knowledge he was able to answer confidently and made us feel at ease using Better Way 2 Build. Everything was handled quickly, efficiently and his customer service is the best you could find anywhere else. "Thanks Mike for helping change our lives.”
Mk Ultra
Mk Ultra
Mike King has helped my little family get into our own home by guiding us through everything that is to know for building a house. I did not know anything about building, I was shown and given 100% support for the process of owning my own home and I am still being supported during the build. I was given an amazing package deal much cheaper then I predicted with heaps of extras, in the location I wanted. Mike King has made it easy to understand the process and I would highly recommend him.